Eigentumswohnung Unterer Welzberg 4 Calw

Lage: Südhang, im Dachgeschoß eines Sechs- Familienhauses, sonnig und stadtnah mit Blick auf die Stadt und den Schlossberg. Südbalkon. Stadtanbindung 10min zum Einkaufs- und Ge- schäftszentrum Brühl. Waldspazierwege 10min, Kreiskrankenhaus 10min, jeweils Gehzeit.

Blick auf die Stadt

provisionsfrei

Baubiologisch erstellt!

Kaufpreis 189.000.-€         incl. 2 Garagen

Wohnen im Grünen, Wohnraum nicht einsehbar

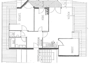
Wohnfläche 77,13qm nach DIN + 15,92qm Atelier. Bruttofläche ca. 100qm.               Gartenanteil ca.25qm, sep.Keller, Wasch- küche.Öl-ZH.                                                     2 Garagen                                                   Hausmeisterservice                                     NK bei Familie mit 2 Kindern 150 €,incl. Heizkosten und Wasserpauschale.

 

Umgebungsbebauung abgeschlossen

Sofortbezug

Die schnuckelige und gemütliche Drei-Zimmerwohnung strahlt eine warme und wohltuende Wohnatmosphäre aus, welche nicht annähernd beschrieben werden kann.Nach baubiologischen Prinzipien errichtet, ist die Wohnung bis heute rauchfrei! Liebevolle Details, Einbauten und gestalterische Elemente bestimmen den Gesamteindruck, wie z.B. die geschwungene Holztreppe, welche zur Galerie führt und eine Nutzung als Studio, Bibliothek oder Arbeitsbereich eröffnet. Man spürt, dass nicht unter kommerziellen Gesichtspunkten gebaut wurde, sondern für selbstbewohnende Eigentümer. Diese Immobilie hebt sich angenehm von den gängigen Abschreibungsobjekten ab

Schlafzimmer, Küche und Wohnraum besitzen einen direkten Zugang zum Balkon.                                

Für Gäste gibt es ein gesondertes WC

Die Galerie erstreckt sich über den gesamten Wohnbereich in der Breite der Küche in Süd-Nord-Richtung mit Öffnung zum Wohnraum und liegendem Dachfenster nach Osten..

 

Kontakt: Email : MEDIcumARTE@t-online.de

Telefon :  07051 70964

O

S

N

W